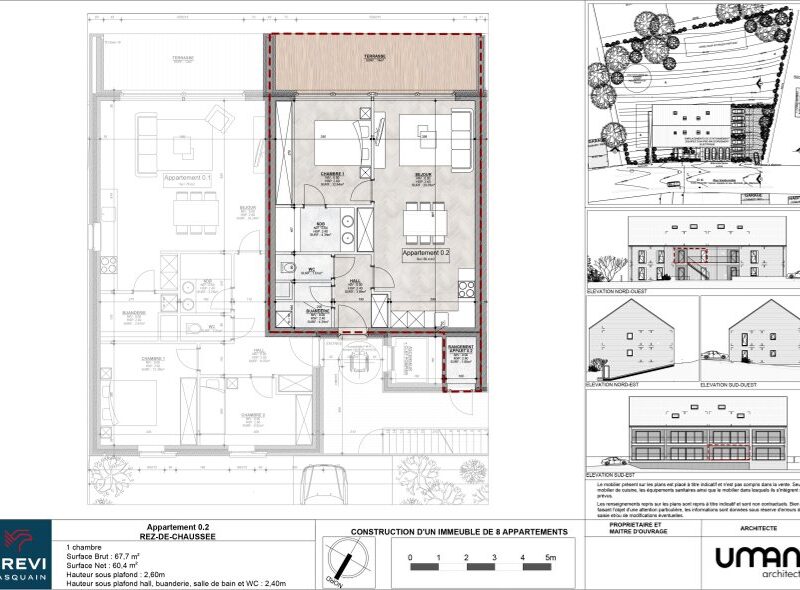
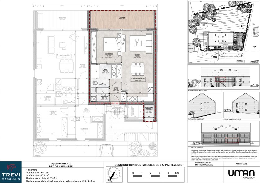
Magnifique appartement neuf dans le village de Marchin
Idéalement situé, dans le charmant village de Marchin, dans une nouvelle résidence de 8 appartements, magnifique appartement 1 chambre de 68 m² avec terrasse privative de 14m².
Finitions haut de gamme, ascenseur, isolation thermique et acoustique soignée. Le prix inclut cuisine équipée complète, revêtements de sol (carrelage et/ou parquet). Possibilité d’acquérir une cave et un emplacement de parking privatif en supplément. Paiement à la livraison (prévue 2026). Vente sous régime TVA 21%.
Option