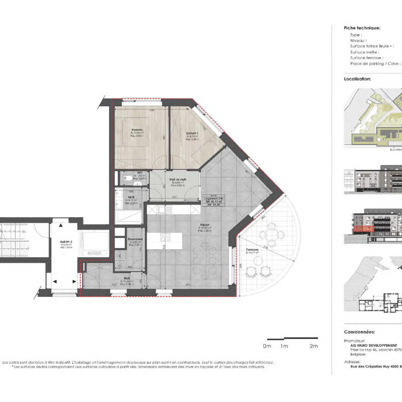
Situé au cœur de Huy, dans une résidence neuve de 23 appartements, l’appartement A1.5 propose 2 chambres, 98,13 m² habitables et une terrasse privative de 16,77 m². Un appartement agréable à vivre, avec un extérieur généreux, idéal pour profiter de la ville tout en gardant un vrai confort.
Finitions haut de gamme, ascenseur, isolation thermique et acoustique soignée. Chauffage sol, pompe à chaleur , VMC double flux, châssis double vitrage alu/PVC. PEB A.
Inclus : forfait cuisine + revêtements de sol. Cave et parking privatif en option. Livraison fin 2027. Prix : 310.000 € (vente sous TVA, 6% possible sous conditions).
Rue Wilmotte-Dupont 4500 Huy
Type de bien : Appartement
Statut : À vendre
98 m²
2 chambres
PEB : A
Notre équipe se tient à votre disposition pour vous accompagner dans vos projets immobiliers, avec attention et professionnalisme.