← Retour au projet Wilmotte Dupont

Appartement 2 chambres à Huy

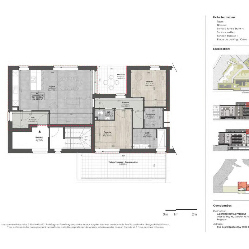
En plein centre-ville de Huy, dans une résidence neuve de 23 appartements, l’appartement A4.1 offre 2 chambres, 103,54 m² et une terrasse privative de 20,45 m². Un appartement rare : grand extérieur, beaux volumes et prestations premium, dans un immeuble neuf à très haute performance énergétique.

Finitions haut de gamme, ascenseur, isolation thermique et acoustique soignée. Chauffage sol, pompe à chaleur , VMC double flux, châssis double vitrage alu/PVC. PEB A.
Inclus : forfait cuisine + revêtements de sol. Cave et parking en option. Livraison fin 2027. Prix : 360.000 € (vente sous TVA, 6% possible sous conditions).


Localisation

Rue Wilmotte-Dupont 4500 Huy

Informations

  • Type de bien : Appartement

  • Statut : À vendre

  • Statut : Vendu

  • 104 m²

  • 2 chambres

  • PEB : A

360.000€ **HF** TVA 6%

Photos - Appartement A4.1

Intéressé ?

Contactez-nous

Notre équipe se tient à votre disposition pour vous accompagner dans vos projets immobiliers, avec attention et professionnalisme.